Trampoliini

Tuotetunnus (SKU): 2214 Osastot: , Tuotemerkki:

Trampoliini

5 910,00 

Lisätietoja tuotteesta

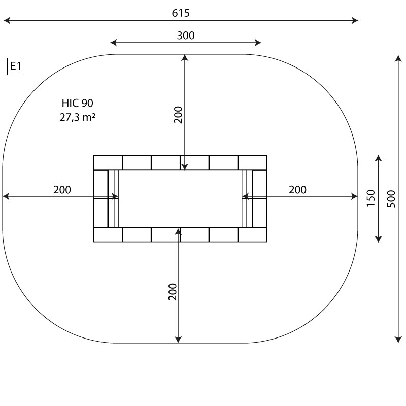
Pituus

3000 mm

Leveys

1500mm

Korkeus

50 mm

Turva-alue

27,3 m2

Ikäsuositus

4 v

Putoamiskorkeus (mm)

900 mm

Käyttäjien määrä

1

Asennusaika

2 h

Painavin osa

203 kg

Lataa tiedostoja

Tuotekortti

2D dwg

3D dwg

Nicklas Kaivola

nicklas.kaivola@kiddos.fi

+358 40 834 4556