Liukumäki

Tuotetunnus (SKU): 0831 Osastot: , Tuotemerkki:

Liukumäki

2 385,00 

Lisätietoja tuotteesta

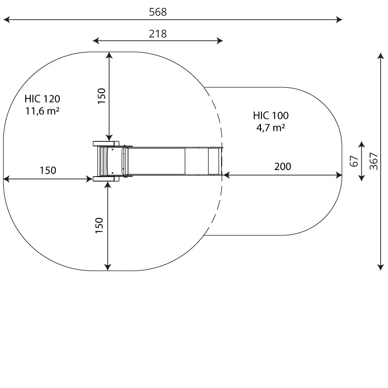
Pituus

2180 mm

Leveys

670mm

Korkeus

2050 mm

Turva-alue

16,3 m2

Ikäsuositus

3 v

Putoamiskorkeus (mm)

1200 mm

Käyttäjien määrä

4

Asennusaika

2 h

Perustustapa

Betonointi

Painavin osa

30 kg

Liukumäkien määrä

1

Korkein taso

1200 mm

Tasojen korkeudet

1200

Kiipeilyelementtien määrä

1

Lataa tiedostoja

Tuotekortti

2D dwg

3D dwg

Nicklas Kaivola

nicklas.kaivola@kiddos.fi

+358 40 834 4556