Jeeppi

Tuotetunnus (SKU): 0820 Osastot: , Tuotemerkki:

Jeeppi

2 314,00 

Lisätietoja tuotteesta

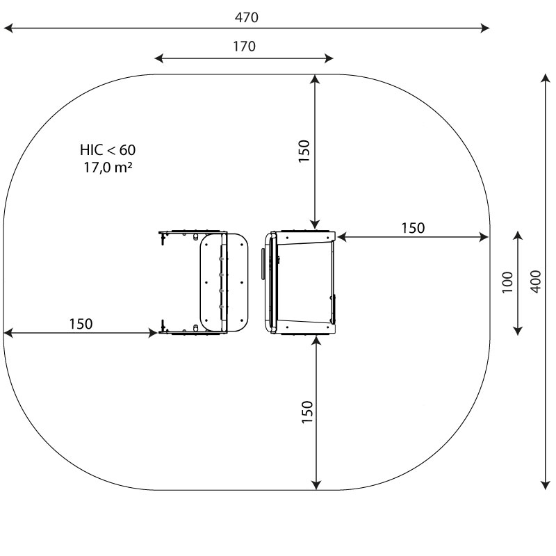
Pituus

1700 mm

Leveys

1000mm

Korkeus

1000 mm

Turva-alue

17 m2

Ikäsuositus

3 v

Putoamiskorkeus (mm)

<600 mm

Käyttäjien määrä

5

Asennusaika

3 h

Perustustapa

Betonointi

Painavin osa

65 kg

Toimintoseinien määrä

2

Lataa tiedostoja

Tuotekortti

2D dwg

3D dwg

Nicklas Kaivola

nicklas.kaivola@kiddos.fi

+358 40 834 4556